Beschrijving

Per 01-06-2026 komen er 5 leuke en ruime studentenkamers vrij aan de Turkooisstraat 34 in Groningen. 

Locatie: 
In de directe omgeving zijn diverse dagelijkse voorzieningen aanwezig, waaronder een Albert Heijn en een HEMA voor boodschappen en overige dagelijkse benodigdheden. Het Winkelcentrum Paddepoel is ook goed bereikbaar en beschikt over alle belangrijke voorzieningen, zoals winkels en supermarkten. Daarnaast is de Zernike Campus eenvoudig bereikbaar, wat de locatie aantrekkelijk maakt voor studenten. Ook de binnenstad van Groningen is binnen circa 10 minuten fietsen te bereiken.

Indeling: 
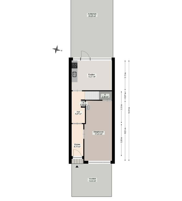
Bij binnenkomst van de woning kom je in de hal, die toegang geeft tot de eerste kamer van circa 18 m² (foto 2 en 3) en de gemeenschappelijke keuken. De keuken is voorzien van alle benodigde voorzieningen. Daarnaast beschikt de woning over een gezamenlijk toilet en een gedeelde badkamer. De tweede kamer van circa 13 m² (foto 4 en 5) en de derde kamer van circa 23 m² (foto 6, 7 en 8) bevinden zich op de eerste verdieping. De vierde kamer van circa 13 m² (foto 9, 10 en 11) en de vijfde kamer van circa 17 m² (foto 12, 13 en 14) zijn gelegen op de tweede verdieping. Verder beschikt de woning over een voortuin van circa 14,43 m² en een ruime achtertuin van circa 39,25 m².

Huurprijs en borg: 
De huurprijs van kamer 1 bedraagt €764,- per maand inclusief een voorschot van €95,- voor gas, water, elektriciteit en internet. 
De huurprijs van kamer 2 bedraagt €685,- per maand inclusief een voorschot van €95,- voor gas, water, elektriciteit en internet.
De huurprijs van kamer 3 bedraagt €785,- per maand inclusief een voorschot van €95,- voor gas, water, elektriciteit en internet.
De huurprijs van kamer 4 bedraagt €675,- per maand inclusief een voorschot van €95,- voor gas, water, elektriciteit en internet.
De huurprijs van kamer 5 bedraagt €727,- per maand inclusief een voorschot van €95,- voor gas, water, elektriciteit en internet.
De waarborgsom bedraagt één maand huur. Let op: voor kamerverhuur is het niet mogelijk om huurtoeslag aan te vragen. 

Beschikbaarheid en huurperiode: 
De kamers zijn vanaf 01-06-2026 beschikbaar. De huurovereenkomst wordt aangegaan voor onbepaalde tijd.

Interesse:
Reacties kunnen uitsluitend via onze website worden ingediend door te klikken op ‘Reageer op dit object’. Telefonische reacties kunnen wij helaas niet in behandeling nemen. Vanwege het grote aantal aanvragen kunnen wij niet op iedereen reageren. Wij nodigen doorgaans circa 5 kandidaten uit voor een bezichtiging. We kunnen helaas niet iedereen persoonlijk beantwoorden of uitnodigingen.

Kenmerken