New for rent

For rent: Leuke kamer in een gerenoveerd studentenhuis nabij het overwinningsplein!

€475 /mo
Address: Jennerstraat 12, 9728 GX Groningen
Type of residence Apartment, Student room, Residential other
Liveable area 6.4 m²
Acceptance Immediately
Status New for rent

Note

General

Per direct komt er een studentenkamer beschikbaar aan de Jennerstraat 12 in Groningen.

Locatie:
De woning ligt in de wijk Corpus den Hoorn. Op loopafstand bevindt zich het Overwinningsplein, waar je een ruim aanbod aan supermarkten en winkels vindt. Het centrum van Groningen is binnen ongeveer tien minuten fietsen te bereiken.

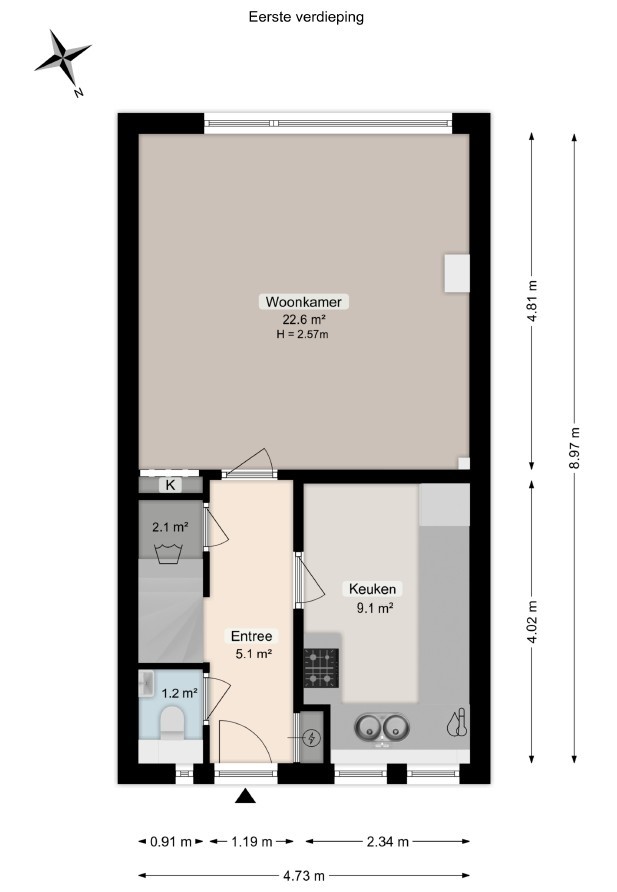
Indeling:
De woning bevindt zich op de eerste verdieping van... More info
  • Features

    All characteristics
    Type of residence Apartment, Student room, Residential other
    Construction period 1961
    Status New for rent
    Offered since 03 March 2026
  • Location

Features

Offer
Reference number 01246
Asking price €475 per month (incl. gas, incl. water, incl. electricity, indexed)
Deposit €475
Service costs €75 per month
Status New for rent
Acceptance Immediately
Offered since 03 March 2026
Construction
Type of residence Apartment, Student room, Residential other
Floor 2nd floor
Type of construction Existing estate
Construction period 1961
Surfaces and content
Floor Surface 6.4 m²
Content 16 m³
Layout
Number of floors 1
Number of rooms 1 (of which 1 bedroom)
Energy consumption
Energy certificate B

Description

Per direct komt er een studentenkamer beschikbaar aan de Jennerstraat 12 in Groningen.

Locatie:
De woning ligt in de wijk Corpus den Hoorn. Op loopafstand bevindt zich het Overwinningsplein, waar je een ruim aanbod aan supermarkten en winkels vindt. Het centrum van Groningen is binnen ongeveer tien minuten fietsen te bereiken.

Indeling:
De woning bevindt zich op de eerste verdieping van het pand. Je komt binnen in de gedeelde hal, die toegang geeft tot de gemeenschappelijke keuken, welke is voorzien van een afzuigkap, gaskookplaat, oven en vaatwasser, evenals tot de woonkamer van circa 22 m² en het toilet. Op de tweede verdieping liggen de slaapkamers. Tot slot is er een badkamer van ongeveer 3 m², uitgerust met een douche en een wastafel. Tevens is er een gedeelde berging.

Huurprijs en borg:
De huurprijs van de kamer bedraagt €475,- per maand. inclusief een voorschot van €75,- op gas, water en elektra.
De waarborgsom bedraagt één maand huur. Voor kamerverhuur is geen huurtoeslag mogelijk.

Beschikbaarheid en huurperiode:
De kamer is per direct beschikbaar. De huurovereenkomst wordt aangegaan voor onbepaalde tijd.

Interesse:
Reacties kunnen uitsluitend via onze website worden ingediend door te klikken op ‘Reageer op dit object’. Telefonische reacties kunnen wij helaas niet in behandeling nemen. De volgorde van binnengekomen reacties bepaalt welke kandidaten worden uitgenodigd voor de eerste selectie. Vanwege het grote aantal aanvragen kunnen wij niet op iedereen reageren. Wij nodigen doorgaans circa 5 kandidaten uit voor een bezichtiging. We kunnen helaas niet iedereen persoonlijk beantwoorden of uitnodigen.
Close

Recently viewed