New for rent

For rent: Ruim appartement met drie slaapkamers in de Herewegbuurt!

€1,750 /mo
Address: Rabenhauptstraat 1B, 9725 CA Groningen
Type of residence Apartment, flat with shared staircase, apartment
Liveable area 103 m²
Acceptance By consultation
Status New for rent

Note

General

Per direct komt dit appartement beschikbaar aan de Rabenhauptstraat 1B.

Locatie:
Dit appartement is gelegen in de Herewegbuurt. In de directe omgeving bevindt zich het centraal station en op slechts vijf minuten loopafstand is een Plus-supermarkt gevestigd. Het centrum van Groningen is binnen vijf minuten fietsen te bereiken.

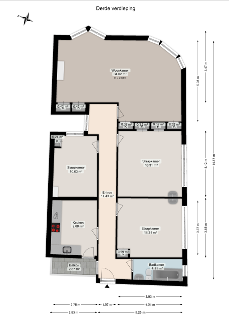
Indeling:
Het appartement is gelegen op de derde verdieping v... More info
  • Features

    All characteristics
    Type of residence Apartment, flat with shared staircase, apartment
    Construction period 1930
    Status New for rent
    Offered since 10 April 2026
  • Location

Features

Offer
Reference number 01370
Asking price €1,750 per month
Deposit €1,750
Status New for rent
Acceptance By consultation
Offered since 10 April 2026
Construction
Type of residence Apartment, flat with shared staircase, apartment
Floor 3rd floor
Type of construction Existing estate
Construction period 1930
Surfaces and content
Floor Surface 103 m²
Content 258 m³
Layout
Number of floors 1
Number of rooms 4 (of which 3 bedrooms)
Number of bathrooms 1

Description

Per direct komt dit appartement beschikbaar aan de Rabenhauptstraat 1B.

Locatie:
Dit appartement is gelegen in de Herewegbuurt. In de directe omgeving bevindt zich het centraal station en op slechts vijf minuten loopafstand is een Plus-supermarkt gevestigd. Het centrum van Groningen is binnen vijf minuten fietsen te bereiken.

Indeling:
Het appartement is gelegen op de derde verdieping van het pand en heeft een totale woonoppervlakte van circa 103 m². Bij binnenkomst kom je in de hal, die toegang biedt tot de woonkamer, de keuken, de badkamer en drie slaapkamers. De keuken is voorzien van een afzuigkap en biedt tevens toegang tot het balkon. De badkamer is uitgerust met een douche, bad, toilet en wastafel.

Huurprijs en waarborgsom
De huurprijs bedraagt €1.750,- per maand, Exclusief ( De huurder dient zelf contracten af te sluiten voor alle nutsvoorzieningen ) . De waarborgsom bedraagt één maand huur.

Beschikbaarheid en huurperiode
Het appartement is per direct beschikbaar. De huurovereenkomst wordt aangegaan voor onbepaalde tijd.

Vanwege het hoge aantal aanvragen kunnen we niet op iedereen reageren. Wij nodigen doorgaans circa 5 kandidaten uit voor een bezichtiging. We kunnen helaas niet iedereen persoonlijk beantwoorden of uitnodigingen.
Close

Recently viewed