New for rent

For rent: Gerenoveerd tweeslaapkamerappartement in de Oosterpoortbuurt!

€1,995 /mo
Address: Verlengde Frederikstraat 17, 9724 NC Groningen
Type of residence Apartment, upstairs apartment, apartment
Liveable area 80 m²
Acceptance By consultation
Status New for rent

Note

General

Per direct komt er een compleet gerenoveerd appartement te huur met twee slaapkamers aan het Fredriksplein in Groningen.

Locatie:
Dit appartement is gelegen in de gezellige Oosterpoortbuurt in Groningen, een levendige wijk met diverse winkels, horecagelegenheden en voorzieningen in de directe omgeving. Voor de dagelijkse boodschappen bevindt zich een Plus-supermarkt op korte afstand van de... More info
  • Features

    All characteristics
    Type of residence Apartment, upstairs apartment, apartment
    Construction period 1899
    Status New for rent
    Offered since 24 February 2026
  • Location

Features

Offer
Reference number 01234
Asking price €1,995 per month
Deposit €1,995
Status New for rent
Acceptance By consultation
Offered since 24 February 2026
Construction
Type of residence Apartment, upstairs apartment, apartment
Type of construction Existing estate
Construction period 1899
Surfaces and content
Floor Surface 80 m²
Content 160 m³
Layout
Number of floors 1
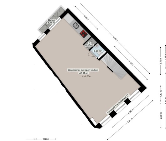
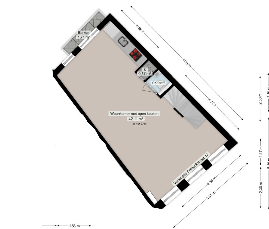
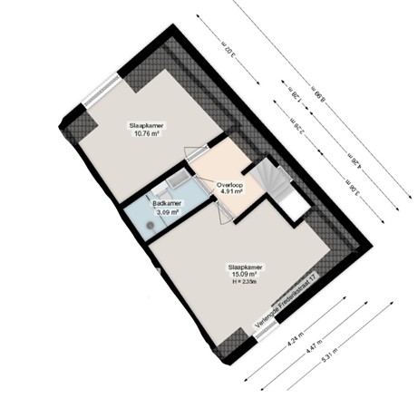
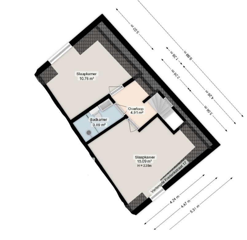
Number of rooms 3 (of which 2 bedrooms)
Number of bathrooms 1 (and 1 separate toilet)
Energy consumption
Energy certificate A+++
Features
Has a balcony Yes

Description

Per direct komt er een compleet gerenoveerd appartement te huur met twee slaapkamers aan het Fredriksplein in Groningen.

Locatie:
Dit appartement is gelegen in de gezellige Oosterpoortbuurt in Groningen, een levendige wijk met diverse winkels, horecagelegenheden en voorzieningen in de directe omgeving. Voor de dagelijkse boodschappen bevindt zich een Plus-supermarkt op korte afstand van de woning. Bovendien ligt het stadscentrum op slechts enkele minuten fietsen, waardoor alle faciliteiten binnen handbereik zijn.

Indeling en voorzieningen:
Het appartement heeft twee slaapkamers en beschikt over een A+++ label. Je komt bij binnenkomst direct in de lichte woonkamer met open keuken, die is voorzien van een inductiekookplaat, vaatwasser, koelkast, combi-oven en magnetron. Vanuit de woonkamer is het balkon toegankelijk. De badkamer beschikt over een douche, wastafel en toilet. Tot slot is er een ruime, gedeelde achtertuin die wordt gebruikt door de zeven appartementen van het complex.

Huurprijs en borg:
De huurprijs bedraagt € 1.995,- per maand, exclusief een voorschot voor servicekosten.
De woning wordt exclusief verhuurd. Dit betekent dat huurders zelf zorgdragen voor het afsluiten en betalen van de servicekosten voor gas, water, elektra, internet etc. De waarborgsom bedraagt één maand huur. Het is voor dit appartement mogelijk om huurtoeslag aan te vragen.

Beschikbaarheid en huurperiode:
Het appartement is per direct beschikbaar. De huur wordt aangegaan voor onbepaalde tijd.

Interesse:
Reacties kunnen uitsluitend via onze website worden ingediend door te klikken op ‘Reageer op dit object’. Telefonische reacties kunnen wij helaas niet in behandeling nemen. De volgorde van binnengekomen reacties bepaalt welke kandidaten worden uitgenodigd voor de eerste selectie. Vanwege het grote aantal aanvragen kunnen wij niet op iedereen reageren. Wij nodigen doorgaans circa 5 kandidaten uit voor een bezichtiging. We kunnen helaas niet iedereen persoonlijk beantwoorden of uitnodigen.
Close

Recently viewed